Austyn
Isabella Headshot
Isabella

Tour our new homes in Vista Sandia

Contact our team to schedule a private community tour.

(505) 578-7060

Mon - Sat: 10am-6pm

Sunday: Closed

Walk-ins Welcome, No Appointment Needed

Main Office & Warranty (505) 842-1700

La Luz

Starting at $340,990

1,366 Square Feet
2 Bathrooms
3 Bedrooms
2 Garage Spaces

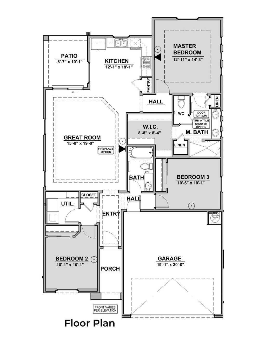
The La Luz floorplan at Vista Sandia in Los Lunas, New Mexico is a thoughtfully designed single-story home that delivers comfort, efficiency, and modern living at an accessible price point. With approximately 1,366 square feet, 3 bedrooms, and 2 bathrooms, this home is ideal for first-time buyers, downsizers, or anyone looking for a low-maintenance new construction home near Albuquerque.

Designed with functionality in mind, the home opens into a bright and connected great room, kitchen, and dining area, creating a seamless open-concept layout that maximizes space and natural light. The efficient footprint allows homeowners to enjoy a spacious feel without unnecessary square footage.

The kitchen serves as the central hub, featuring ample counter space and a layout that flows directly into the main living area, perfect for entertaining or everyday living. The open design ensures connectivity throughout the home while maintaining defined spaces.

The owner’s suite offers a private retreat, complete with a spacious bedroom, walk-in closet, and well-appointed en-suite bath. Secondary bedrooms are conveniently located nearby with access to a full bathroom, making the layout ideal for families, guests, or a home office setup.

Highlights of this home 

  • Approximately 1,366 square feet
  • 3 bedrooms, 2 bathrooms
  • Open-concept great room, kitchen, and dining
  • Private owner’s suite with walk-in closet
  • Functional layout designed for efficiency
  • Two-car garage
  • Energy-efficient construction

The floorplan images provided are for illustrative purposes only and may not represent the exact layout, dimensions, or features of an available home. All square footage and room dimensions are approximate and vary by elevation. Prices, plans, features, and options are subject to change without notice. See Sales Representative for details.


Visit Our Model Home

5355 La Cueva St. SW, Los Lunas, NM 87031 | Get Directions

Learn More About Our Brand New Homes

For more information, please contact our
Online Sales Consultants

Austyn & Isabella

(505) 578-7060

Exterior Designs

La Luz Home Design

View Available Options
1366  La Luz Home Design Layout