
Austyn
Tour our new homes in Vista Sandia
Contact our team to schedule a private community tour.
Pino
Starting at $346,490
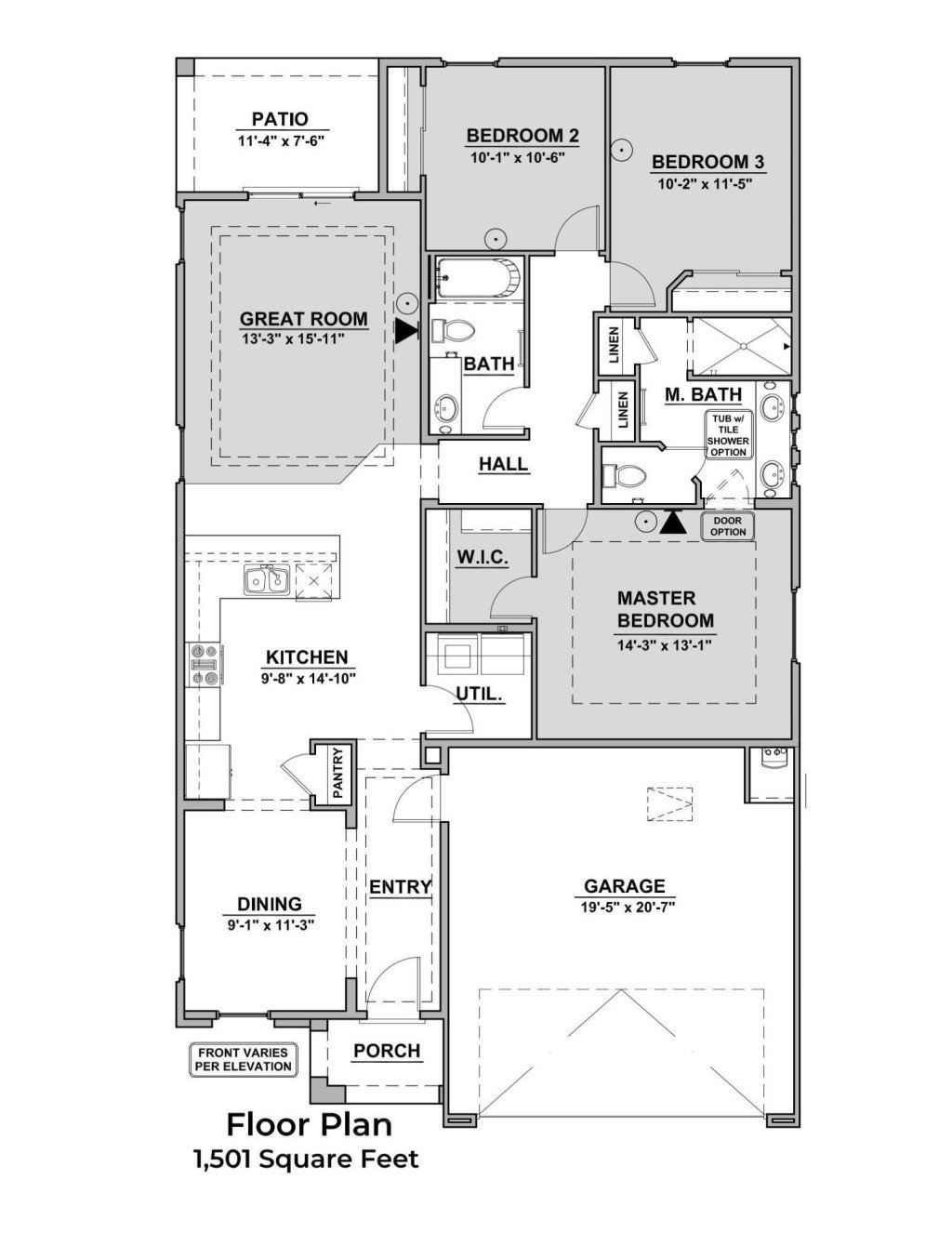
1,501 Square Feet
2 Bathrooms
3 Bedrooms
2 Garage Spaces
Owners will appreciate the large great room adorned with tray ceilings and natural light. The spacious kitchen and breakfast bar make this home perfect for entertaining!
Highlights of this home
- Spacious foyer provides a stylish, welcoming entry
- Gracious dining room is ideal for formal entertaining or casual gatherings
- Generous great room opens to a covered patio to expand your living space
- Exceptional owner's suite includes dual vanities, separate shower, private toilet room, and large walk-in closet
The floorplan images provided
Home Design Gallery
Exterior Designs
Pino Home Design
View Available Options